本次為廠房改造辦公室裝修設計方案,廠房一共三層2200平方,設計師在辦公室設計中,保留了空間原有的特色,設計師希望將老空間經過培育煥發新的生機,而不是全盤否定。
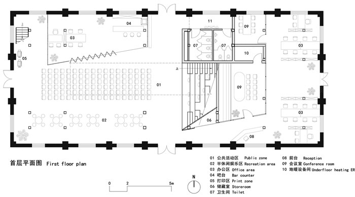
▼辦公室首層平面圖

▼辦公室二層平面圖

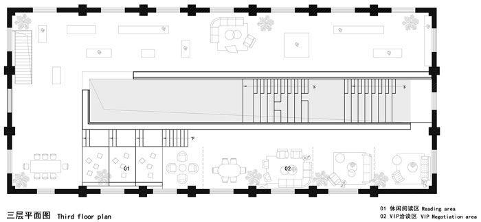
▼辦公室三層平面圖

▼辦公室進門區

▼辦公室接待區

▼辦公室樓梯

▼辦公室樓梯

▼辦公室樓梯

▼辦公室樓梯

▼辦公室二樓

▼辦公室二樓過道

▼辦公室二樓接待

▼辦公室二樓前臺

▼辦公室休息區

▼辦公室洽談區

▼辦公室樓梯

▼辦公室樓梯與吊頂

▼辦公室辦公區

▼辦公室交流區

▼辦公室會議室

本次為廠房改造辦公室裝修設計方案,設計師在辦公室設計中,保留了原建筑的大部分特色,這樣做目的就是希望為建筑煥發新的生機,而不是重新來過。